Navigation aufklappen/zuklappen
Ingenieurbüro
Referenzen
Projekte
Buschkauler Feld
Einfamilienhaus
Doppelhaus
Mehrfamilienhaus
Kontakt / Impressum
Ingenieurbüro
Buschkauler Feld
Kontakt / Impressum
Ingenieurbüro Klein-Hofmann
Ingenieurbüro Klein-Hofmann
Referenzen
Projekte
Luxuriöses Einfamilienhaus in Bonn Rüngsdorf ...
Indviduelles Einfamilienhaus im Landhaus Stil
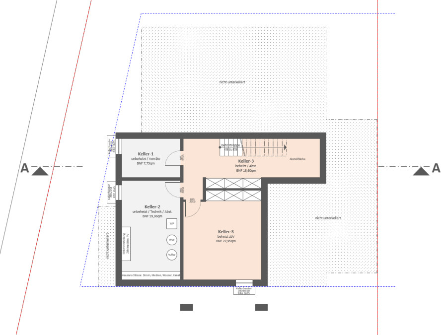
Keller
Erdgeschoss
Dachgeschoss
Schnitt
Neubau Systemgastronomie Köln-Bonn
Zugang zur Eingangsseite
Roof-Top / Dachterrasse
Eingeschossiger Anbau an bestehendes Wohnhaus
Aufstockung eines Einfamilienhaus - Rheinblick Bonn
Straßenansicht (Rheinblick)
Gartenansicht
Keller
Erdgeschoss
Obergeschoss 1
Dachgeschoss
Schnitt